(旧吉野小学校)建築工事状況について
ページID : 1816
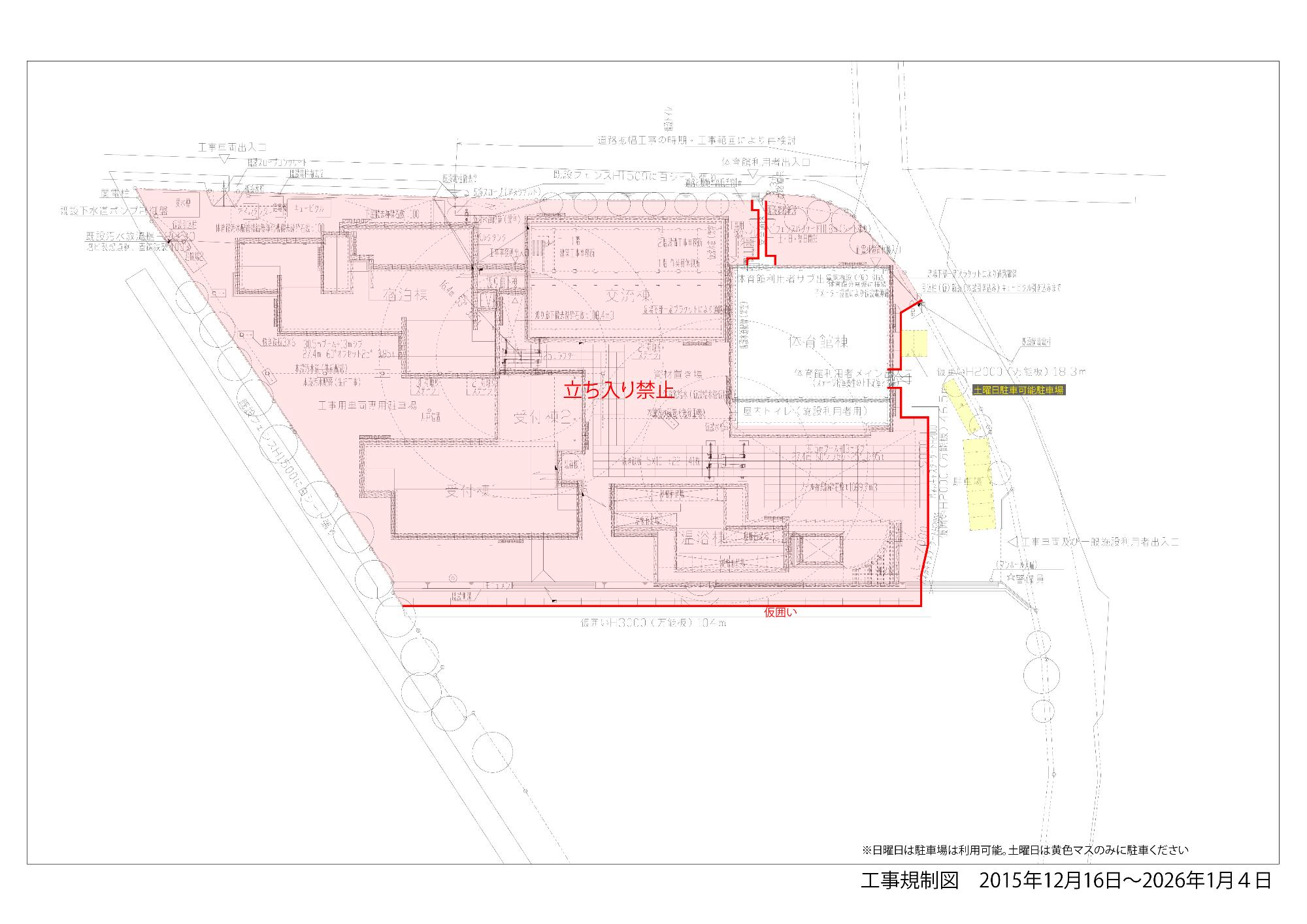
解体・改修・新築工事に伴う規制図
仮囲い設置について(令和7年12月19日)
令和7年12月16日(火曜日)に解体・改修・新築工事が開始され仮囲い設置が完了しました。安全面を考慮し仮囲い内へは立入禁止となります。今後、令和9年4月開所を目指し工事が進む予定です。


旧吉野小学校建築工事 住民説明会について(令和7年10月21日)
株式会社奥村組との事業契約締結を11月に予定しており、締結後、改修・新築工事着工予定である為、上市地区・吉野地区の代表者様にご出席いただき〈事業進捗〉〈工事概要〉〈建築概要〉〈安全対策〉〈工事工程〉について株式会社奥村組より説明いただきました。
この記事に関するお問い合わせ先
吉野町役場 町長公室
〒639-3192 奈良県吉野郡吉野町大字上市80番地の1
電話:0746-32-3081、0746-39-9071(IP直通電話)
ファクス番号:0746-32-8855
お問い合わせフォーム

更新日:2025年12月19日